四合院建筑,是我国古老、传统的文化象征。“四”东西南北四面,“合”是合在一起,形成一个口字形,这就是四合院的基本特征。四合院建筑之雅致,结构之巧,数量之众多,当推北京为最。它形成了以家庭院落为中心,街坊邻里为干线,社区地域为平面的社会网络系统。
—— 第 一 篇 ——
四合院常识
四合院是我国古老、传统的文化象征
“四”指东、西、南、北四面
“合”是四面房屋围在一起
形成一个”口“字形

四合院至少拥有三千多年的历史
是汉族的一种传统合院式建筑
其格局为一个院子四面建有房屋
将庭院合围在中间
故名四合院
▼
老北京正规的四合院
一般依东西向的胡同而坐北朝南
大门辟于宅院东南角“巽”位
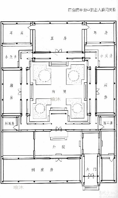
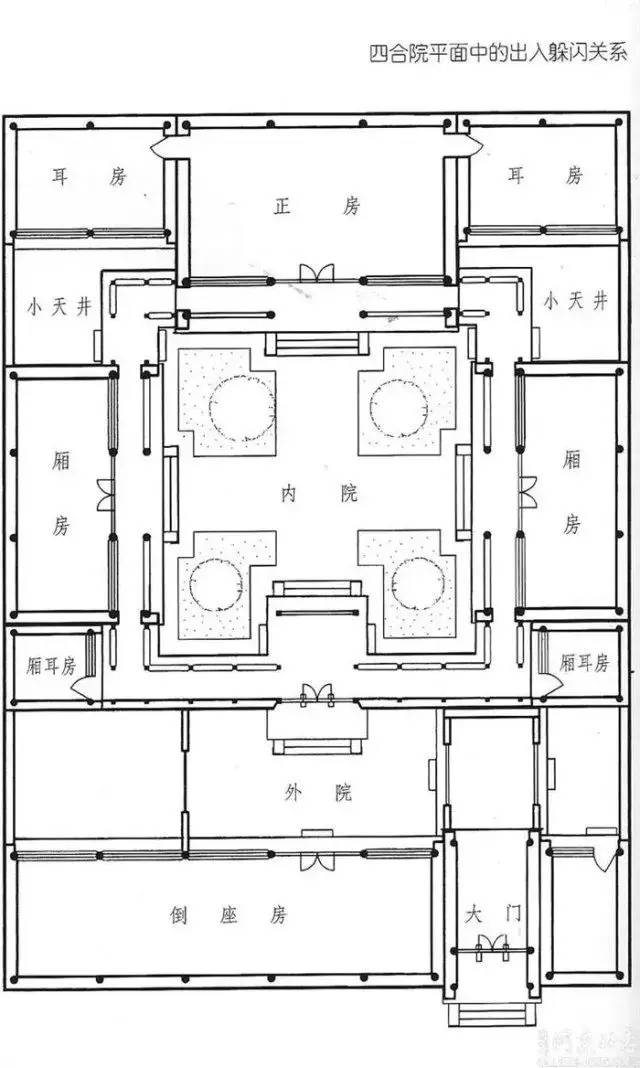
四合院中间是宽敞的庭院
庭院中植树栽花
备缸饲养金鱼
是四合院布局的中心
也是人们穿行、采光、通风、
纳凉、休息、家务劳动的场所

而四合院做为中国最具乡土风情的
五大传统住宅建筑形式之一
并不是只有简单的”口”字形哦~
▼
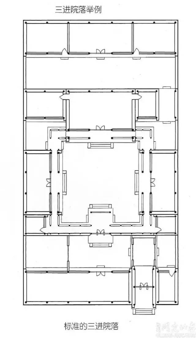
“口”字形的称为一进院落
“日”字形的称为二进院落
“目”字形的称为三进院落

在你以为“三进”就是满级了的时候
机智的中国古代劳动人民并不满足于此
▼

其中
三进院落是明清时期
最标准的四合院结构
其布局最为合理、紧凑
是民间大量采用的形式
▼

看了平面图
大家有没有发现了什么奇怪的地方?
▼
为什么四合院的大门
不开在正中而要开在东南角?

这个问题的答案
我们留到最后再揭晓!
有兴趣的朋友们可以猜猜看~
现在先来说说
四合院的大门有什么讲究
▼
其实中国的建筑向来等级森严
各种建筑单体
按照主人的身份分为不同等级
就连大门也不例外






四合院布局(以最常见的三进四合院为例)
整体布局依据风水

北京四合院的大门,从位置上说,指的是进入四合院的主要入口,临街的门,北京人习惯叫它“街门”。门是旧社会主人地位的一个表征。分为王府大门、广亮大门、金柱大门、如意门、蛮子门等。

王府大门
王府大门是屋宇式大门中的最高等级。通常有五间三启门和三间一启门两等。这种大门座落在王宅院的中线上,宏伟气派。


广亮大门
仅次于王府大门,它是屋宇式大门的一种主要形式,这种大门一般位于宅院的东南角,占据一间房的位置。




金柱大门
这是一种门扉安装在金柱(俗称老檐柱)间的大门,称为“金柱大门”。


蛮子门
门扉安装在外檐柱间,门扇槛握的形式仍采取广亮大门的形式,北京人把这种门称为“蛮子门”。


如意门
如意门里的住户一般是在政治上地位不高,但却非常殷实富裕的士民阶层。


墙垣式门
墙垣式门墙垣门 也叫随墙门,其特点是无门洞,顺墙开,只占半间或大半间宽度,院门较窄。



影壁
影壁也称照壁,设在大门之内的迎门处,是大门内外的重要装饰壁面,壁身都为正方形,四周用砖雕装饰,中间的方块为书法或者绘画。主要作用在于遮挡大门内外杂乱呆板的墙面和景物,美化大门的出入口,人们在进出宅门时,迎面看到的首先是迭砌考究、雕饰精美的墙面和镶刻在上面的吉辞颂语。



倒座房
紧邻四合院大门,坐南朝北跟正房相对的房屋。通常为外客厅、账房、门房、客房、仆人居住等用途。



垂花门
垂花门是中国古代建筑院落内部的门,因其檐柱不落地,垂吊在屋檐下,称为垂柱,其下有一垂珠,通常彩绘为花瓣的形式,故被称为垂花门。它是内宅与外宅(前院)的分界线和唯一通道。旧时人们常说的“大门不出,二门不迈”,“二门”即指此垂花门。



抄手游廊
连接和包抄垂花门、厢房和正房,雨雪天可方便行走。



有的正房和厢房带廊子。五间的是三间正房两间耳房,耳房是单开门,所谓“三正两耳”。七间的,在正房和耳房之间,有两个与正房相通的(在山墙开门)套间儿。东西厢房各三间,厢房和耳房之间,有个过道儿,可以通后院。



✿
介绍完门
让我们一起
走进四合院转转吧~
▼
从大门进去
迎面就是影壁

影壁有遮挡外人视线的作用
即使敞开大门
外人也看不到宅内
还可以烘托气氛
增加住宅气势
▼



看到影壁后再往里走
就到了第一进院和第二进院之间的一道门
——垂花门
▼
垂花门是整个四合院
最漂亮、最带感的一道门!





过了垂花门
就是第二进院了
若遇到雨雪天气
或无重要活动不开放垂花门时
想进入正院
就要经过抄手游廊
▼


四合院的参观就到这儿啦~
是不是很喜欢这样古朴的房子~
✿
哦对了
大家还记得前面说过的问题吗?
▼


—— 第 二 篇 ——
四合院建筑解析

垂花门

大门构造

带八字影壁广亮大门

带花园四合院

带花园四合院1

单卷棚垂花门

二进带游廊平面

房间透视

广亮大门

脊

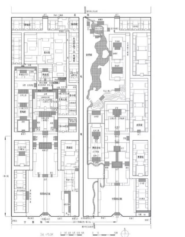
贾府建大观园前总平面图

贾府建大观园前总平面图02

建筑构架

金柱大门

蛮子门

门墩

如意门

如意门砖雕1


如意门砖雕2

三进四合院

三进四合院平面图

山墙犀头

书房立面

书房平面

四进四合院

随墙门

堂屋家具陈设

堂屋家具陈设里面

堂屋家具陈设平面

五出五进

西洋门

巽门

一殿一卷垂花门

一进四合院和三合院平面图

一进四合院平面图

一主一次并列四合院

影壁花心
这是中国红客官网
厉害